0797-8186426

产品类别:永磁板式强磁机
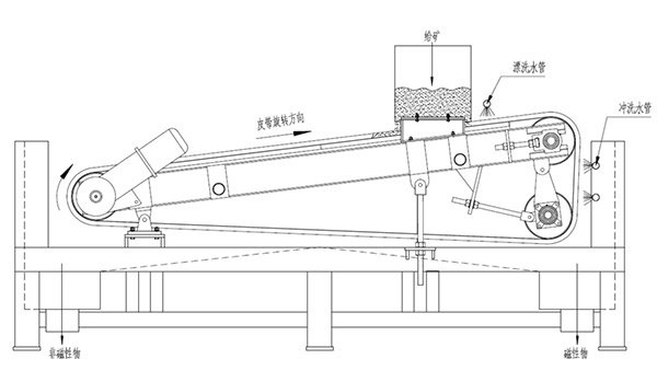
SPBC型永磁板式强磁选机
适用于石英砂、钾钠长石、霞石、高岭土等非金属矿除铁提纯和赤铁矿、褐铁矿、锰矿、黑钨矿、钽铌矿等弱磁性金属矿的分选,也适用于尾矿中的有价金属的回收。
服务热线:0797-8186426
技术特点

磁场强度高:磁系全部采用高性能稀土钕铁硼材料制作,表面磁场强度高达1.3T,磁块矫顽力高不易退磁,磁感应强度高,磁场梯度大,对弱磁性矿物具有良好的分选能力;

有效分选面积大:磁选分选面最大宽度可达2.5m,最大长度可达3.0m;

结构简单、稳定可靠:设备主要由机架、平板磁系及附件组成,磁块和导磁板采用独特的固定方式,牢固可靠;

防跑偏设计:皮带内侧设置卡条,在运行过程中不会跑偏,并且跟换皮带方便快捷;

节能环保:单机能耗低、耗水量小,运行成本低,节能效果突出。

工作原理图

应用案例

永磁机用于分选钛铁矿

永磁机用于分选钛铁矿

应用于海南分选铁矿

应用于海南分选铁矿

石英砂除铁

石英砂除铁

分选钛铁矿

分选钛铁矿

CTB-1018磁选机分选钛铁矿

CTB-1018磁选机分选钛铁矿

相关产品

SJ浆料高梯度磁选机

SJ浆料高梯度磁选机

SCT永磁筒式磁选机

SCT永磁筒式磁选机

SLon立环脉动高梯度磁选机 1.0T标准型

SLon立环脉动高梯度磁选机 1.0T标准型

SL型离心选矿机

SL型离心选矿机

在线咨询
姓名
*
邮箱
*
电话
*
分选矿物
留言
验证码
*